bedworth
Transforming your community
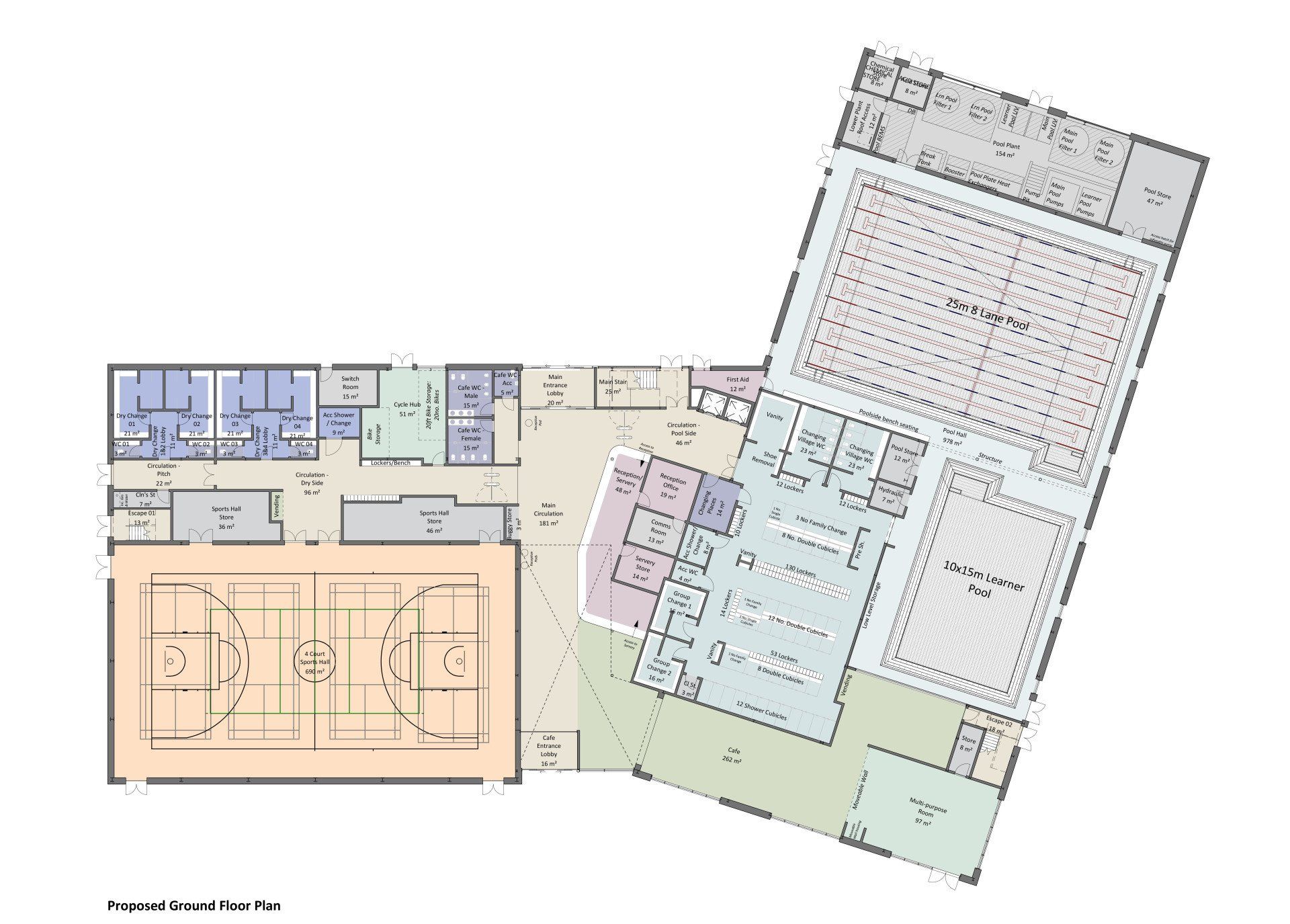
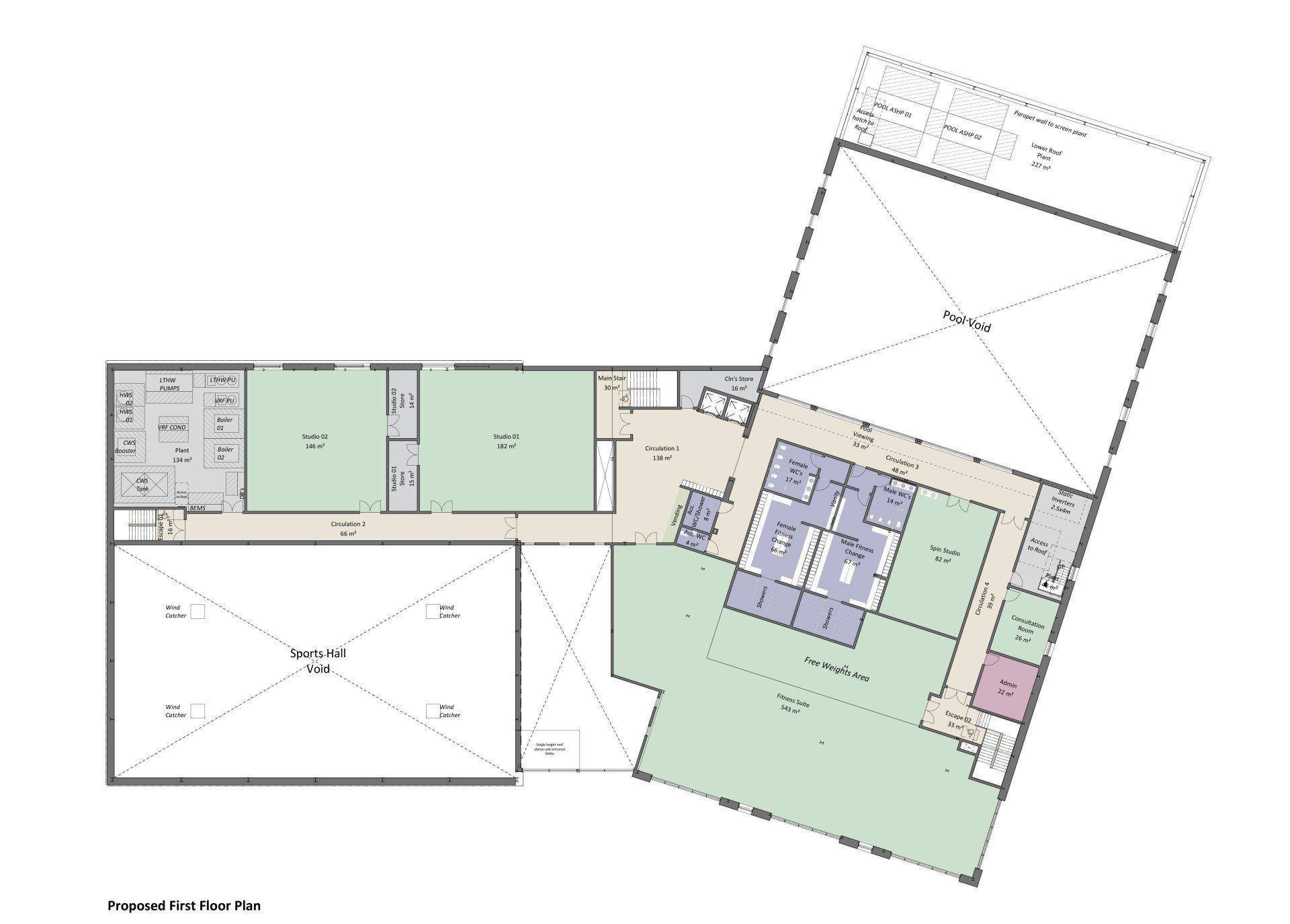
The Bedworth Physical Activity Hub is a £24.7m investment and will replace the existing 1970s centre and serve our community for the next 50 years.
From a 25m 8 lane swimming pool to new walking, running and cycling routes in Miners’ Welfare Park, you'll find something to move you.
Here's the latest plans - take a closer look at your new Physical Activity Hub!
Some of the highlights are:
- 25m 8 lane Community Pool
- 10m x 15m Learner Pool
- Wet Change Village
- Changing Places
- 4 Court Sports Hall
- 120 Station Fitness Suite
- 2 Fitness Studios
- Spin Studio
- 9v9 3G Pitch (third generation synthetic surface)
- Learn to Ride
- Pump Tracks / All Wheels Parks / Skate Park
- Green Gym
- Cycle Hub with Bike Storage
- Café
- Increased capacity car park, including family and disabled spaces, coach drop off, and EV charging stations for electric vehicles
Read more in our project FAQs here.
Download the full Miners' Welfare Park plan
We launched our new Mountain Bike Trails and sports courts!
Hear all about the new developments from Nigel Huddleston, the Parliamentary Under Secretary of State at the Department for Digital, Culture, Media and Sport and Katie Memetovic-Bye, Leisure and Health Manager, Nuneaton and Bedworth Borough Council.
Have you tried the new facilities? Let us know what you think!







